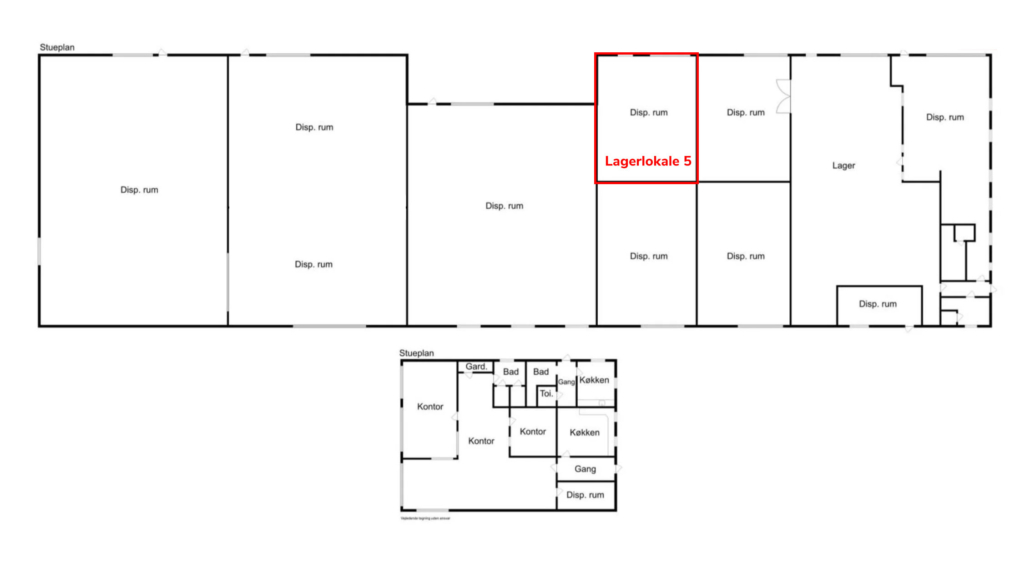
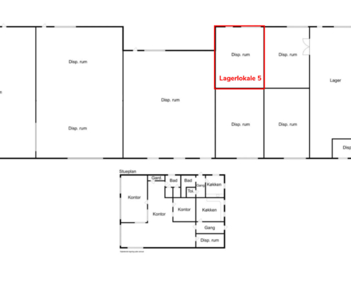
Mindre lagerlokaler på 100 m2 med egen indgang og port.
Passer til alle slags erhverv.
Overtagelsesdato er fra 1.02.2026 kan muligvis overtages før
NB: Alle priser er ekskl. Moms og forbrug. Men inklusive drift og vedligeholdelse af ejendommen, samt adgang til fælles toiletter og mulighed for at få sat sit firmanavn op på en Pylon.
Alle vægge males og gulvet får epoxy behandling, inden indflytning.
Autoværksteder er ikke tilladt.














